Colonial Remodeling, Today's Remodeling Experts Colonial Remodeling Facebook Page - Serving the Northern VA Washington DC, Maryland MD Areas, Pennsylvania, New Jersey
#1 James Hardie Siding & Trim Contractor in MD Maryland Northern VA Washington DC  Pennsylvania, New Jersey
703-534-0800
  Roofing Contractor in Northern VA Maryland DC
301-469-0002
  Windows & Doors Installation Design MD Maryland Northern VA Washington DC
202-216-9797
  Pittsburgh Metro Area Home Remodeling & Design
484-879-2219
  New Jersey Metro Area Home Remodeling & Design
201-484-7290
  Manufacturers | References | Insurance Recovery | FAQs| BlogWhy Choose Colonial Remodeling

For a 100% FREE ESTIMATE, contact us today to set up an appointment
to discuss your home's new custom-designed entranceway or porch in VA, MD or DC.

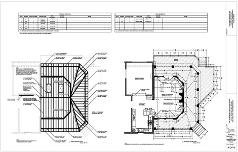
Porticos & Porches


Colonial Remodeling's expert team designs and custom-builds porticos, porches and entranceways to enhance the curb appeal and utility of your home. Using our superior craftsmanship and the finest building products on the market, we can help you change the whole first impression of coming into your home (and keep you and your visitors dry when you/they get to the front door!)

For the ultimate new portico or entranceway, Colonial Remodeling can craft a custom-design with a new cement slab (with or without a slate or tile veneer), or a pressure-treated landing covered with a framed structure finished with a selection from our quality, low-maintenance siding, trim, and roofing materials manufacturers.   Or we can simply update your existing front landing to a new, low-maintenance, covered structure - custom-designed for your home. Either way, our innovative products and seasoned staff of professionals allow endless possibilities to design and create a custom portico or entranceway that will be the envy of your neighborhood!

For more information on how Colonial Remodeling can help you add a visually stunning and useful entranceway to enhance the appearance and enjoyment of your home, contact us today by using our simple 100% FREE ESTIMATE form.

 
Entranceways Built to Last
 
Potico Quality Checklist

Colonial's Remodeling's
Entranceway & Porticos
Quality Checklist
ensures that our expert craftsmanship
is noticeably outstanding!

Entranceways & Porticos Quality Checklist

Porticos & Porches Gallery
 
 

Colonial Remodeling is honored to be a preferred contractor of all our major manufacturers.

 
Take our customer satisfaction survey - Washington DC Northern Virginia VA Maryland MD

We Stand Behind Our Remodeling Work to Guarantee Your Complete Satisfaction.

 
Links
 
Contact Information
VA Class "A" LIC 2705-081772A
MHIC 82360
DC GC 70108025
PA HIC 079493
NJ HIC 13VH07040500
Delaware Contractor License #2014604309

Angie's List Super Service
Award 4 years in a row!

 
Colonial Remodeling
Phone:
VA: 703-534-0800
MD: 301-469-0002
DC: 202-216-9797
PA: 484-879-2219
NJ: 201-484-7290
Colonial Remodeling - Home Remodeler